Beschrijving
Jouw kans om in Noordwijk je eigen droomplek te creëren!
Ben je op zoek naar een ruim, licht en betaalbaar appartement met royale woonkamer, twee slaapkamers en een dubbel balkon waar je helemaal je eigen draai aan kunt geven? Dan is dit riante hoek appartement op de eerste verdieping in de wijk Boerenburg precies wat je zoekt!
Dit hoek appartement wordt leeg opgeleverd in de huidige staat, wat betekent dat jij alle vrijheid hebt om het naar jouw smaak te moderniseren en in te richten. Van vloeren tot keuken en kleuren op de muur, hier kun je echt jouw persoonlijke stijl en sfeer neerzetten.
Om je alvast een idee te geven van de mogelijkheden, zijn bij de foto’s ook artist impressions toegevoegd ter inspiratie.
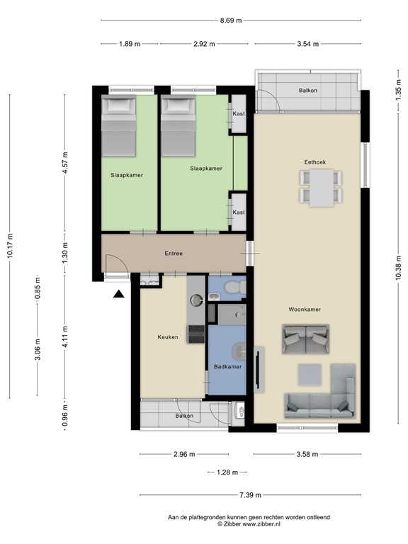
Met een woonoppervlakte van 83,7 m² is er volop ruimte om fijn te wonen, te werken en te ontspannen. Zodra je het appartement binnenkomt kom je in de gang met aan weerszijden toegang naar twee slaapkamers, het toilet, de keuken en de badkamer. Aan het einde van de gang valt de royale lichte doorzonwoonkamer direct op. Dankzij de grote ramen aan de voor- en achterzijde én aan de zijkant geniet je hier de hele dag van natuurlijk daglicht.
Aan de voorzijde de keuken met een balkon waar je heerlijk kunt genieten van de ochtendzon. Aan de achterzijde grenst nog een tweede balkon aan de woonkamer, de ideale plek om in de middagzon te borrelen of even lekker te relaxen na een drukke dag.
De ligging
Je woont hier lekker rustig, met supermarkten, scholen, sportverenigingen en een winkelcentrum allemaal op loopafstand. Voor en naast het appartement is er gratis parkeergelegenheid.
Even uitwaaien of genieten bij je favoriete Beach club? Binnen een paar minuten fietsen sta je op de boulevard of het strand van Noordwijk.
Ook de bereikbaarheid verder weg is top: openbaar vervoer ligt om de hoek en via de A44 rijd je binnen zo’n 30 minuten naar Schiphol, ideaal voor werk of een weekendje weg.
Samengevat:
- Licht en ruim hoek appartement (ruim 83m2 woonoppervlakte)
- Op de eerste verdieping in een kleinschalig appartementencomplex
- Twee slaapkamers
- Royale woonkamer met veel daglicht (ramen voor en achter met een zijraam)
- Dubbel balkon (voor- en achterzijde)
- Wordt leeg opgeleverd in de huidige staat
- Gratis parkeergelegenheid voor en naast het appartement
- Berging begane grond
- Rustige ligging, dichtbij scholen, winkels en Openbaar Vervoer
- Dichtbij boulevard en het strand
- Bijdrage VvE € 150,16 per maand
Ben je nieuwsgierig geworden? Plan snel een bezichtigingsafspraak via Funda of stuur een e-mail naar OKHUIJSEN MAKELAARDIJ.
Ervaar zelf de mogelijkheden en ontdek hoe fijn het wonen is bij Salviahof 34 in Noordwijk.
* Onjuistheden ten aanzien van de tekst voorbehouden, daarvoor geen aansprakelijkheid.
* Aan de inhoud van de tekst kunnen op geen enkele wijze rechten worden ontleend.
Plattegronden
salvi_appartement_first_design_20251023_a4f060.jpg
salvi_berging_first_design_20251023_d68953.jpg
salvi 3d 178391512-289924693-se-141719077-1761178349049.png
salvi 3d berging 178391512-289938598-se-141719077-1761178349049.png